Trilocale in vendita

Cosenza, Via Degli Stadi
€ 60.000
3 locali 3 locali
80 Mq 80 Mq
1 bagno 1 bagno

Trilocale in vendita

Cosenza, Via Degli Stadi

Descrizione annuncio

COSENZA - VIA DEGLI STADI

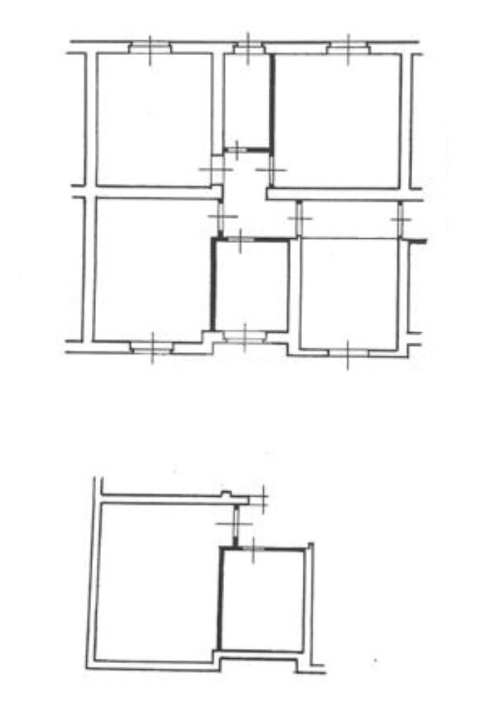
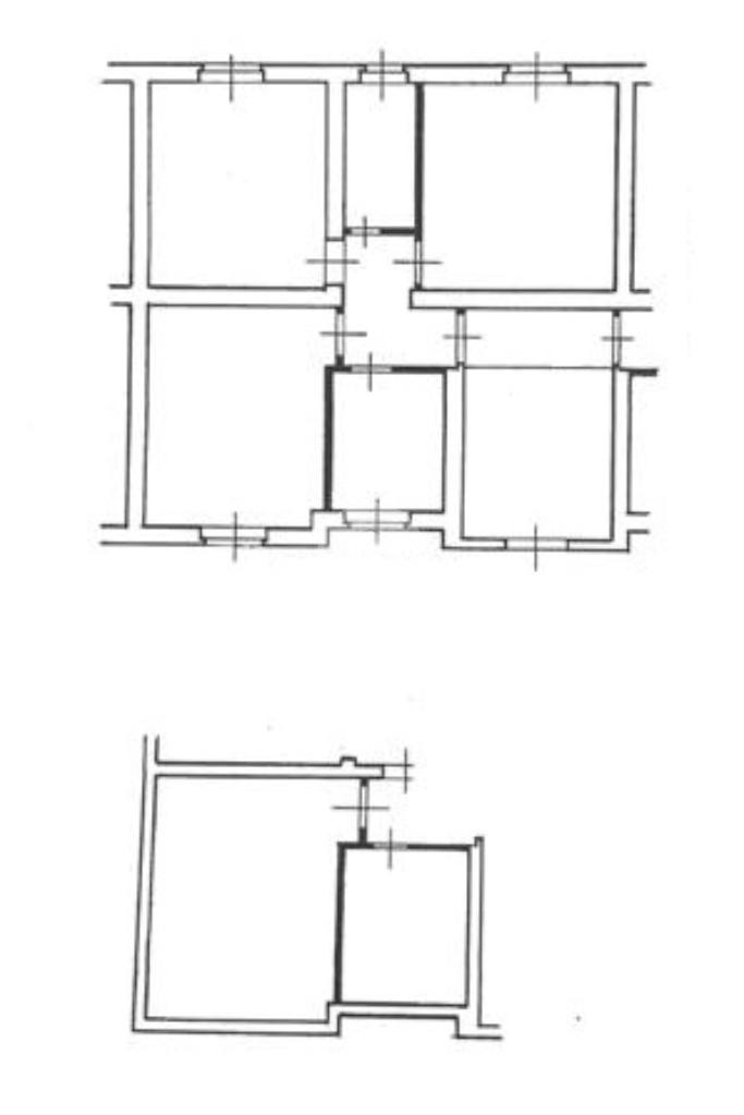
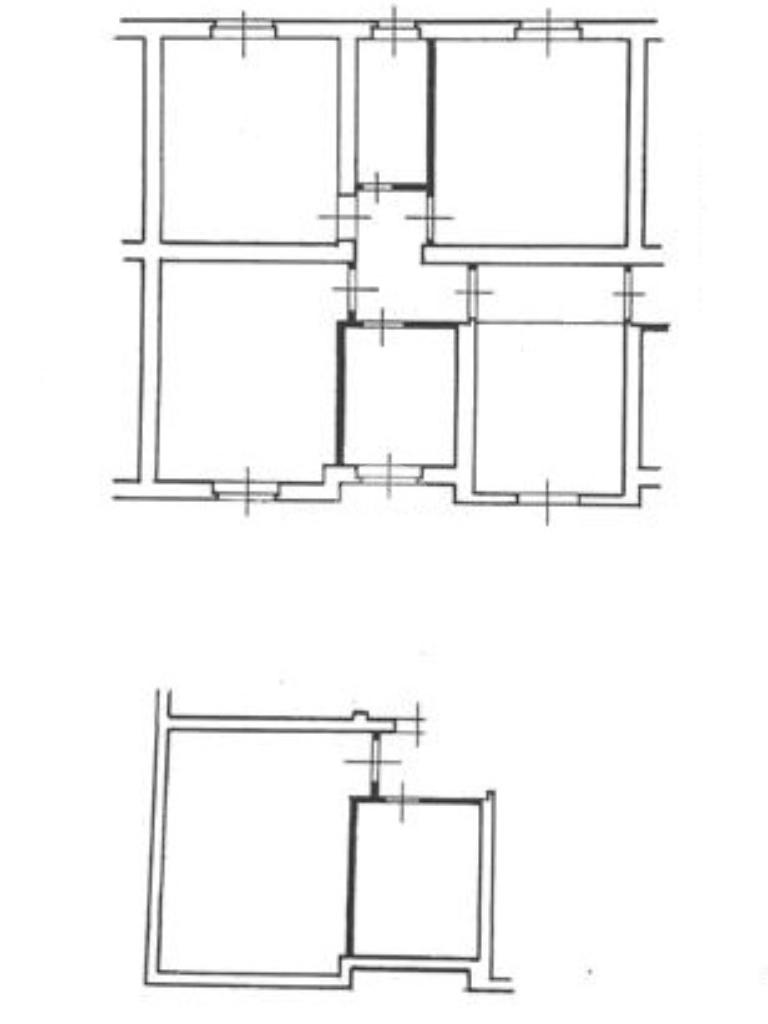
Nel cuore del comune di Cosenza, proponiamo in vendita un appartamento di 80 mq, situato al piano rialzato, di un edificio costruito nel 1960.

L'immobile in buono stato interno, appartenente alla categoria civile, offre una disposizione funzionale con tre locali ben distribuiti.

L' appartamento è suddiviso in: ingresso, disimpegno, cucina, soggiorno, due comode camere da letto ed un bagno.

Gli spazi interni sono pensati per garantire comfort e praticità, ideali per chi cerca una soluzione abitativa accogliente e ben collegata ai servizi cittadini.

La posizione strategica consente di raggiungere facilmente le principali vie di comunicazione e i punti di interesse della città. Comodamente a piedi si ufruisce di tutti i servizi di prima necessità, quali: supermercato, farmacia, scuole, tabacchi ed altri shop e a pochi passi, troviamo la fermata dell' autobus.

L'appartamento rappresenta un'opportunità interessante per chi desidera vivere in una zona tranquilla ma al contempo vicina al centro urbano.

La struttura solida e la disposizione degli ambienti offrono una base ideale per personalizzare gli spazi secondo le proprie esigenze e gusti.

Infissi in vetro camera ed alluminio, bagno ristrutturato e finestrato, riscaldamento autonomo con caldaia e radiatori in ghisa.

A completare la soluzione sono due soffitte utili e capienti per conservare tutto ciò che si desidera.

Per fissare un appuntamento chiamare in agenzia , i nostri incaricati sono a vostra disposizione dal lunedì al sabato dalle ore 8.30 alle ore 13.00,e dalle ore 15.30 alle ore 20.00.

Ogni agenzia ha un proprio titolare ed è autonoma.

Vi invitiamo a cliccare 'Mi piace' sulle nostre pagine Facebook ed Instragram per essere sempre aggiornati su tutte le nostre proposte immobiliari.

I nostri consulenti della Kiron, società di mediazione creditizia del Gruppo Tecnocasa, sono a vostra disposizione , fissando un incontro nei nostri uffici, per proporvi una soluzione nell'ottenimento di un mutuo o un finanziamento con una consulenza gratuita e personalizzata.

Mostra tutto

Nelle vicinanze

Trasporto pubblico Trasporto pubblico
Cosenza Vaglio Lise
Cosenza Vaglio Lise
2,4 Km
stazione di Cosenza
stazione di Cosenza
2,4 Km
Cosmai
Cosmai
1,5 Km
Cosenza Autostazione (16)
Cosenza Autostazione (16)
1,7 Km
Cosenza Monaco
Cosenza Monaco
2,3 Km
Ricariche auto elettriche Ricariche auto elettriche
EnelX Fast EVA+ Cosenza
800 m
COSENZA Città dei Ragazzi | ENELX
1,1 Km
Cosenza Tribunale | EnelX
1,5 Km
Rende Via Caduti di Nassirya | EnelX
2,0 Km
Cosenza Misasi | EnelX
2,0 Km
Scuole Scuole
Istituto di Istruzione Superiore Statale di Castrolibero
590 m
Liceo Scientifico G. B. Scorza
1,7 Km
Liceo Scientifico G.B. Scorza
1,7 Km
ITI A. Monaco
1,8 Km
ITI A. MONACO di Cosenza
1,8 Km
Farmacia Farmacia
Farmacia Beneduce Antonietta
2,6 Km
Ospedali Ospedali
Biocontrol
1,6 Km
Pronto Soccorso
2,0 Km
Ospedale di Cosenza
2,1 Km
Supermercati Supermercati
MD Discount
1,7 Km
NaturHouse
1,7 Km
Iperspar
2,1 Km
GS
2,3 Km
Carrefour Market
2,4 Km
Negozi Negozi
Negozi
2,5 Km
Bar Bar
Panoramico
1,7 Km
Bistot De Giuseppe
1,7 Km
Bar San Francesco
1,8 Km
Bar Kennedy
1,9 Km
Bar
1,9 Km
Ristoranti Ristoranti
Ristorante Cinese
3,0 Km
Mostra tutto

Caratteristiche

Rif.:
61171376
Piano:
Basso di 4
Totale piani:
4
Camere da letto:
2
Arredamento:
Assente
Condizionamento:
Assente
Mostra tutto
Prezzo Prezzo
€ 60.000
Rata mutuo Rata mutuo
€ 283 / mese
Spese annue Spese annue
€ 180
Proponi il tuo prezzoProponi il tuo prezzo

Classe Energetica

G
G
G
G
G
G
G
G
G
EP invernale del fabbricato:
EP estiva del fabbricato:
Anno di costruzione:
1960
Riscaldamento:
Autonomo
Tipo impianto:
A radiatori
Tipo alimentazione:
Metano

Ti interessa visionare l'immobile?

Fissa un appuntamento  Fissa un appuntamento

Richiedi informazioni

Clicca su Leggi per aprire l'informativa
* Questi campi sono obbligatori

Calcola il tuo mutuo

Semplice e senza impegno
Anticipo

( % )
Mutuo

( % )

pochi semplici passi

inserisci i tuoi dati
Questionario completato
Grazie per aver richiesto un appuntamento senza impegno con un nostro Consulente del Credito e Assicurativo.

Hai inserito correttamente tutti i dati necessari e a breve riceverai una e-mail con un link da convalidare per inviare i tuoi dati.
Affiliato
Immobiliare Cosenza D.I.
Via Gramsci, snc 87100 Cosenza (CS)

Il nostro staff


  • Vincenzo Pizzo
    Affiliato
Via Gramsci, snc 87100 Cosenza (CS)
Zona: Cosenza Centro
Mostra su mappa
Orari: 08:45/13:00 - 16:00/20:00
Affiliato
Immobiliare Cosenza D.I.
Via Gramsci, snc 87100 Cosenza (CS)

2026 Tecnocasa Franchising S.p.A. - P. IVA 08365160152 - Via Monte Bianco 60/A 20089 Rozzano (MI). Ogni agenzia ha un proprio titolare ed è autonoma. Privacy policy | Policy utilizzo | Cookie policy