Trilocale in vendita

Cosenza, Piazza Spirito Santo
€ 77.000
3 locali 3 locali
104 Mq 104 Mq
1 bagno 1 bagno

Trilocale in vendita

Cosenza, Piazza Spirito Santo

Descrizione annuncio

COSENZA - PIAZZA SPIRITO SANTO

Nel cuore di Cosenza e a pochi metri dal centro città, proponiamo in vendita appartamento in buono stato interno posto al terzo piano.

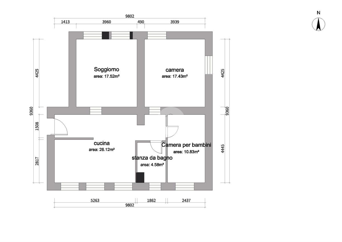
L'appartamento è composto da tre locali ben distribuiti, ideali per chi cerca spazi funzionali e accoglienti, precisamente è suddiviso in: ingresso, cucina abitabile con balcone, soggiorno, disimpegno, due camere da letto ed un bagno finestrato con vasca.

La disposizione interna permette di sfruttare al meglio ogni ambiente, garantendo comfort e praticità.

La presenza del balcone in cucina, rende la soluzione luminosa ed arieggiata con vista panoramica sul contesto storico.

La posizione centrale consente di raggiungere facilmente i principali servizi e le attrazioni della città, rendendo questa soluzione abitativa perfetta per chi desidera vivere in un contesto urbano dinamico.

L'immobile, appartenente alla categoria civile, rappresenta un'opportunità interessante per chi cerca una residenza che unisca il fascino del passato con le comodità moderne.

Ideale per uso investimento, per famiglie e/o per giovani coppie.

Infissi in vetro camera ed alluminio;

climatizzatori aria caldo/freddo.

Zona con facilità di parcheggio.

Per fissare un appuntamento chiamare in agenzia , i nostri incaricati sono a vostra disposizione dal lunedì al sabato dalle ore 8.30 alle ore 13.00,e dalle ore 15.30 alle ore 20.00.

Ogni agenzia ha un proprio titolare ed è autonoma.

Vi invitiamo a cliccare 'Mi piace' sulle nostre pagine Facebook ed Instragram per essere sempre aggiornati su tutte le nostre proposte immobiliari.

I nostri consulenti della Kiron, società di mediazione creditizia del Gruppo Tecnocasa, sono a vostra disposizione , fissando un incontro nei nostri uffici, per proporvi una soluzione nell'ottenimento di un mutuo o un finanziamento con una consulenza gratuita e personalizzata.

Mostra tutto

Nelle vicinanze

Trasporto pubblico Trasporto pubblico
Cosenza Casali
Cosenza Casali
240 m
Cosenza Centro
Cosenza Centro
860 m
Cosenza Autostazione (1)
Cosenza Autostazione (1)
1,9 Km
Cosenza Autostazione (2)
Cosenza Autostazione (2)
1,9 Km
Cosenza Campanella
Cosenza Campanella
1,7 Km
Ricariche auto elettriche Ricariche auto elettriche
Cosenza Misasi | EnelX
1,4 Km
EnelX Fast EVA+ Cosenza
2,6 Km
Cosenza Tribunale | EnelX
2,7 Km
Zumpano San Nicola | EnelX
2,8 Km
Mendicino Rosario | EnelX
2,9 Km
Scuole Scuole
Scuola Elementare Spirito Santo
110 m
Convitto Nazionale Bernardino Telesio
320 m
Liceo Classico B. Telesio
330 m
Scuola
480 m
Scuole
1,0 Km
Farmacia Farmacia
Farmacia Beneduce Antonietta
860 m
Ospedali Ospedali
Ospedale di Cosenza
1,4 Km
Pronto Soccorso
1,5 Km
Biocontrol
2,4 Km
Supermercati Supermercati
Supermercati
790 m
Interspar
1,0 Km
Scarpelli
1,1 Km
Carrefour Market
1,2 Km
GS
1,2 Km
Negozi Negozi
Panificio Occhiuto
150 m
Bar Bar
Bar
790 m
Renzelli
870 m
Bar Kennedy
1,6 Km
Bar San Francesco
1,9 Km
Panoramico
1,9 Km
Ristoranti Ristoranti
Ristoranti
120 m
Pizzeria Le Magnolie
900 m
Mostra tutto

Caratteristiche

Rif.:
61152261
Piano:
3 di 4 (Piano alto)
Balconi:
1
Camere da letto:
2
Arredamento:
Assente
Condizionamento:
Autonomo
Mostra tutto
Prezzo Prezzo
€ 77.000
Rata mutuo Rata mutuo
€ 360 / mese
Spese annue Spese annue
€ 240
Proponi il tuo prezzoProponi il tuo prezzo

Classe Energetica

G
G
G
G
G
G
G
G
G
EP invernale del fabbricato:
EP estiva del fabbricato:
Anno di costruzione:
1950
Riscaldamento:
Assente

Ti interessa visionare l'immobile?

Fissa un appuntamento  Fissa un appuntamento

Richiedi informazioni

Clicca su Leggi per aprire l'informativa
* Questi campi sono obbligatori

Calcola il tuo mutuo

Semplice e senza impegno
Anticipo

( % )
Mutuo

( % )

pochi semplici passi

inserisci i tuoi dati
Questionario completato
Grazie per aver richiesto un appuntamento senza impegno con un nostro Consulente del Credito e Assicurativo.

Hai inserito correttamente tutti i dati necessari e a breve riceverai una e-mail con un link da convalidare per inviare i tuoi dati.
Affiliato
Immobiliare Cosenza D.I.
Via Gramsci, snc 87100 Cosenza (CS)

Il nostro staff


  • Vincenzo Pizzo
    Affiliato
Via Gramsci, snc 87100 Cosenza (CS)
Zona: Cosenza Centro
Mostra su mappa
Orari: 08:45/13:00 - 16:00/20:00
Affiliato
Immobiliare Cosenza D.I.
Via Gramsci, snc 87100 Cosenza (CS)

2026 Tecnocasa Franchising S.p.A. - P. IVA 08365160152 - Via Monte Bianco 60/A 20089 Rozzano (MI). Ogni agenzia ha un proprio titolare ed è autonoma. Privacy policy | Policy utilizzo | Cookie policy